
呼吸人孔(HXF-HR型) 防爆阻火呼吸人孔(HXF-HRZ型)
Breathing Manhole Breathing Manhole with Flame Arresting

呼吸人孔、阻火呼吸人孔是安裝在儲罐頂上的安全應急通氣裝置,通常與阻火呼吸閥配套使用,既然避免因意外原因造成罐內急劇超壓或真空時,損壞儲罐而發生事故,又能起到安全防火作用,是保護儲罐的安全裝置,特別適用于貯存物料以氮氣封頂的拱頂常壓罐。具有定壓排放、定壓吸入、開閉靈活、安全阻火、結構緊湊、密封性能好、安全可靠等優點。
Breathing Man hole and Breathing Manhole With Flame Arresting is a kind of emergent venting device for safety , which shall be installed on the top of the tank roof. It is usually used together with breather valve and flame arrester. It can not only avoid sudden extra-pressure or vacuum in tank causting storage tank, especially used for normal-pressuredome roof tanks with nitrogen-covered storage fuel. The products have advantages in exhaling and inhaling under fixed pressure, opening and closinged by accidents but also arrest the flame safely. At present it has been applied very well in protecfreely, safe arresting flame, compact structure, well-performed sealing and safety reliability etc.
阻火呼吸人孔“設備材質” Materials of construction:
NO | 1 | 2 | 3 | 4 | 5 | 6 |
構件 Component | 殼體 Body | 閥桿 Stem Guide | 閥盤 Pressure Disk | 閥座 Pressure Seat | 閥套 Coating | 阻火芯件 Fire Arresting |
材質 Material | 不銹鋼 Steel 鋁合金 Aluminums 碳鋼 Casting | 304 316 316L PTFE | 304 316 316L PTFE | 304 316 316L PTFE | 304 316 316L PTFE | 304 316 316L PTFE |
注:連接標準:HG 、GB、 ANSI、 JIS、 DIN等等.
Standard Connection:HG、GB、ANSI、JIS、DIN、ect.
操作壓力:-392pa——+1961pa (-40pammH2O——+200mmH2O)
Operating Pressure:-392pa——+1961pa (-40pammH2O——+200mmH2O)
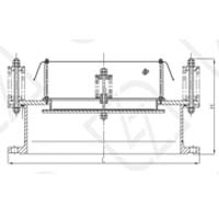
阻火呼吸人孔“尺寸表” Dimension table:
DN | 450 | 500 | 600 | 700 | 750 |
L | 370 | 380 | 480 | 540 | 600 |
H | 658 | 708 | 808 | 908 | 955 |
阻火呼吸人孔“訂貨須知” Order Construction:
1、訂貨時請注明產品尺寸、操作壓力及材質。
Please give clear indication of Dimension,operating pressure and material.
2、當需要其他標準法蘭、材質或操作壓力時請在訂貨時注明。
Please give clear indication of flange,material and operating pressure if you need other standard.
返回:呼吸閥系列
卓澤環保技術人員講解泄壓閥背后的故事
2019-06-30天然氣專用球閥的概述和特點
2019-06-30與普通焊接法蘭相比,SAE法蘭有哪些優點?
2019-06-30泄壓閥內部泄漏的原因和內部泄漏的處理程序
2019-06-30電熱水器的減壓閥有什么用,不是嗎?
2019-06-30泄壓閥的工作原理和特點
2019-05-10閥門泄漏和解決方案的影響
2019-06-30操作前壓力釋放閥維護的問題和解決方案
2019-06-30罐配件系列: $htmlgpjinfo$