
SRB型
籃式過濾器主要由接管、主管、濾藍、法蘭、法蘭蓋及緊固件等組成。當液體通過主管進入濾藍后,固體雜質顆粒被阻擋在濾藍內,而潔凈的流體通過濾籃、由過濾器出口排出。當需要清洗時,旋開主管底部螺塞,排凈流體,拆卸法蘭蓋,清洗后重新裝入即可。因此,使用維護極為方便。
籃式過濾器是除去液體中少量固體顆粒的小型設備,可保護設備的正常工作,當流體進入置有一定規格濾網的濾筒后,其雜質被阻擋,而清潔的濾液則由過濾器出口排出,當需要清洗時,只要將可拆卸的濾筒取
 
    
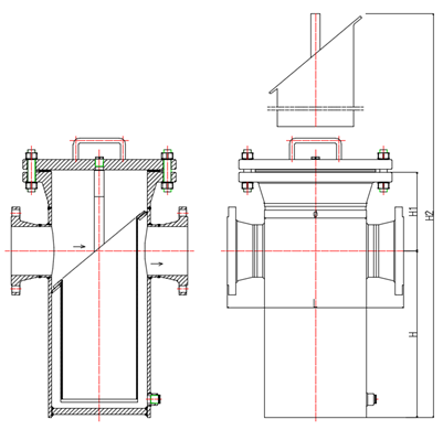
直通型
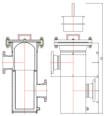
高低接管型
出,處理后重新裝入即可,因此,使用維護極為方便。并可以根據工況需求配合閥門或其他配件組合成消氣過濾器、全自動清洗過濾器和雙聯切換過濾器等特殊功能過濾器。
現市場上主要流行的籃式過濾器都是由直通型和高低接管型演變而來,通過加裝功能不同的組件可變成不同功能的過濾器。
適用工況
籃式過濾器分為氣體過濾器和液體過濾器兩種。氣體過濾器適用于氣固分離流域,可用于氣體凈化、分成回收等。液體過濾器適用于液固分離領域,如潤滑油過濾、石油化工行業過濾以及污水處理等。
訂貨選型
| 型號 | 規格 | 壓力 | 過濾精度 | 溫度 | 
| SRB籃式 | 1”(25mm)-64”(1600mm) | PN2.5-PN420 150LB-2500LB | 5Mesh-500Mesh | -196℃-500℃ | 
| 殼體材質 | 濾芯形式 | 濾芯材質 | 密封件 | 連接標準 | 
| 碳鋼 合金鋼 低溫鋼 鎮靜鋼 奧氏體不銹鋼 雙相不銹鋼 超級不銹鋼 鋯 | 孔網型 楔形 折疊式 疊片式 
 
 | 奧氏體不銹鋼 雙相不銹鋼 超級不銹鋼 防腐涂料處理 PTFE TA2 | 非金屬平墊片 金屬平墊片 金屬纏繞墊 金屬環墊 | 螺紋/承插(ANSI及GB) 對焊(ANSI及GB) 法蘭(ANSI、DIN、JIS及GB) | 
SRB-I直通型籃式過濾器參考尺寸表(mm)


| 口徑SIZE | ? | L | H | H1 | H2 | 有效過濾面積(m2) | 參考重量 (Kg) | |
| DN | In. | |||||||
| 25 | 1 | 89 | 220 | 160 | 100 | 480 | 0.00362 | 14.2 | 
| 32 | 1-1/4 | 89 | 220 | 165 | 105 | 495 | 0.00362 | 15.5 | 
| 40 | 1-1/2 | 114 | 280 | 180 | 120 | 550 | 0.00572 | 20.4 | 
| 50 | 2 | 114 | 280 | 180 | 120 | 550 | 0.00572 | 22.2 | 
| 65 | 2-1/2 | 140 | 330 | 220 | 130 | 650 | 0.00961 | 30.9 | 
| 80 | 3 | 168 | 340 | 260 | 140 | 740 | 0.01539 | 43.5 | 
| 100 | 4 | 219 | 420 | 310 | 160 | 880 | 0.02464 | 64.5 | 
| 150 | 6 | 273 | 500 | 430 | 190 | 1175 | 0.04866 | 102 | 
| 200 | 8 | 325 | 560 | 530 | 250 | 1495 | 0.07858 | 141.5 | 
| 250 | 10 | 406 | 660 | 640 | 290 | 1810 | 0.12065 | 230.1 | 
| 300 | 12 | 457 | 750 | 840 | 360 | 2310 | 0.16537 | 307.3 | 
| 350 | 14 | 508 | 800 | 1010 | 370 | 3480 | 0.2225 | 465.9 | 
| 400 | 16 | 610 | 900 | 1150 | 400 | 3800 | 0.2916 | 695.3 | 
注:尺寸以HG/T 20615-2009 PN20 WN-RF法蘭為模版,如需其他標準法蘭尺寸需參照其他法蘭標準計算,尺寸可以定制。
SRB- II高低接管型籃式過濾器參考尺寸表(mm)

 
   
| 口徑SIZE | ? | L | H | H1 | H2 | H3 | 有效過濾面積(m2) | 參考重量 (Kg) | |
| DN | In. | ||||||||
| 25 | 1 | 89 | 220 | 110 | 70 | 100 | 500 | 0.00362 | 15.2 | 
| 32 | 1-1/4 | 89 | 220 | 110 | 70 | 105 | 515 | 0.00362 | 16.5 | 
| 40 | 1-1/2 | 114 | 280 | 120 | 100 | 120 | 580 | 0.00572 | 21.4 | 
| 50 | 2 | 114 | 280 | 120 | 100 | 120 | 580 | 0.00572 | 23.2 | 
| 65 | 2-1/2 | 140 | 330 | 160 | 110 | 130 | 680 | 0.00961 | 33.9 | 
| 80 | 3 | 168 | 340 | 180 | 140 | 140 | 790 | 0.01539 | 46.5 | 
| 100 | 4 | 219 | 420 | 220 | 170 | 160 | 930 | 0.02464 | 69.5 | 
| 150 | 6 | 273 | 500 | 310 | 220 | 190 | 1250 | 0.04866 | 115 | 
| 200 | 8 | 325 | 560 | 390 | 280 | 250 | 1690 | 0.07858 | 155.5 | 
| 250 | 10 | 406 | 660 | 480 | 320 | 290 | 2100 | 0.12065 | 260.1 | 
| 300 | 12 | 457 | 750 | 640 | 400 | 360 | 2700 | 0.16537 | 387.3 | 
| 350 | 14 | 508 | 800 | 770 | 450 | 370 | 3900 | 0.2225 | 510.9 | 
| 400 | 16 | 610 | 900 | 780 | 520 | 400 | 4600 | 0.2916 | 795.3 | 
注:尺寸以HG/T 20615-2009 PN20 WN-RF法蘭為模版,如需其他標準法蘭尺寸需參照其他法蘭標準計算,尺寸可以定制。
污水處理行業現在是一個涅ana!
2017-03-21高效過濾器可處理飲用水,儲存廢水等高負荷工作
2017-03-19自清潔過濾器:世界上的過濾技術是什么?
2019-02-21自動排污過濾器促進循環
2016-06-28更好的發展管道行業增壓閥美標
2016-06-28嬰兒車空氣過濾器過濾80%的空氣中的有毒氣體
2017-10-31精過濾器選擇的五行分析
2016-06-28市面上有Y型過濾袋這個東東嗎?
2014-09-25淺析隔板高效過濾器的特殊之處
2014-12-08解決水處理行業難題的“過濾神器”
2014-12-08